Lux ЧЕРГА, ЦЕНТРАЛЬНА ЧАСТИНА GLACIER premium apartments
Про GLACIER premium apartments
Унікальна черга, яка є центральною частиною апарт-готелю «GLACIER PREMIUM APARTMENTS» та втілює в собі всі аспекти преміальності найкращих готелів світу.
Lux черга як уособлення вишуканої естетики, високого рівня комфорту та досконалого поєднання спокою і осередку інфраструктури GLACIER PREMIUM APARTMENTS. Простір, де все продумано до дрібниць, аби задовольнити найвибагливіших.
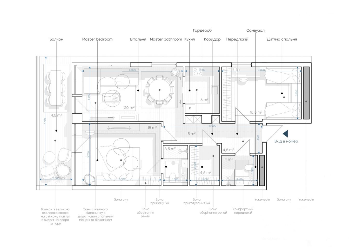
До Ваших послуг 98 апартаментів різних категорій, які будуть мати унікальне наповнення та оснащення, рівень же апартаментів буде відрізнятись лише можливою кількістю проживаючих гостей.
Кожен апартамент має простору терасу, яка оснащена стильними меблями в залежності від категорії та розміру апартаменту.
КУПИТИ АПАРТАМЕНТИ В GLACIER
SUPERIOR ROOM
- Площа:23,6 – 36,6 м²
Продуманий до дрібниць лаконічний простір для двох осіб в найкомпактнішому апартаменті та чотирьох осіб в збільшеному, з унікальним оформленням кухонної зони, яка буде схована за стіновими панелями. Такий прийом дозволить позбутися відчуття «жити на кухні» і є оптимальним для апартаментів із комфортною площею та лакшері простору
Детальніше
DE LUXE ROOM
- Площа:35-44,1 м²
Значна кількість апартаментів «Lux» черги представлена в категорії «De Luxe».
Окрім зони кухні, яка естетично буде схована за стильними панелями та санвузла з максимальним наповненням та душовою кабіною – ми створили окрему relax – beauty зону біля панорамних вікон з ванною. Вдале зонування простору дозволить втілити ваші найромантичніші моменти, а завдяки простій маніпуляції – перетворить вашу спальню в затишний та комфортний простір
Детальніше
PREMIUM ROOM
- Площа:37,6 – 47,8 м²
Родзинкою апартаменту стане вдале планування та розділення зон для відпочинку та сну. Збільшена зона кухні органічно розмежує простір завдяки барній стійці, водночас створюючи гармонічну локацію для дозвілля. Додатковий диван у вітальні та відокремлена безпечною скляною перегородкою спальня створять приватне місце відпочинку для кожного члена сім’ї
Детальніше
FAMILY STUDIO SUITE
- Площа:50,3 – 53, 5 м²
Family Studio двох типів радо похизуються збільшеною зоною кухні, яка буде або органічно схована за стіновими панелями, або винесена в окрему кімнату. А також великим сімейним столом, вітальнею з вмістким розкладним диваном, окремою мастер бедрум спальнею з власною гардеробною, та просторою терасою з лежаками та столом з стільцями, для ідеальної магії ранку та приватного дозвілля
Детальніше
GRAND STUDIO DELUXE
- Площа:80,7 – 88,3 м²
Унікальний апартамент як для відпочинку гостей, які звикли до великих площ і персонального комфорту, так і для великої сім‘ї, в якій панує повага до власного комфорту та простору всіх членів родини.
Дві спальні, окрема кімната з кухнею з розсувними скляними перегородками, простора та світла вітальня з великим обіднім столом, де комфортно розмістяться всі ваші рідні, великий та просторий кутовий диван та тераса, розміру якої складно не заздрити. Додатковим бонусом стане простора гардеробна та два санвузли з максимальним наповненням
Детальніше
PRESIDENTIAL SUITE
- Площа:120,1 – 121, 6 м²
Ми створили унікальний президентський апартамент, аналогів якому немає в регіоні, та складно знайти в Україні. Попередньо розуміючи та очікуючи високий попит на апартамент, ми продумали його до найменших дрібниць.
Перший поверх – велика та простора зона кухні для вашого шеф-кухаря в окремій кімнаті, преміальна вітальня з великим столом та зоною відпочинку, гостьовий санвузол та велика тераса, куди можна подати сніданок або ланч та комфортно розмістити гостей
Другий поверх – дві просторі мастер бедрум з власними санвузлами та гардеробними. Але найголовнішою перевагою цього апартаменту, яка захоплює подих, стануть панорамні вікна на два поверхи та open space, з висотою стелі біля 6 метрів, який об’єднає візуальний простір двох поверхів.
Детальніше


